Na sprzedaż przestronne 4-pokojowe mieszkanie na Osowej Górze w otoczeniu lasu – idealne dla rodziny!
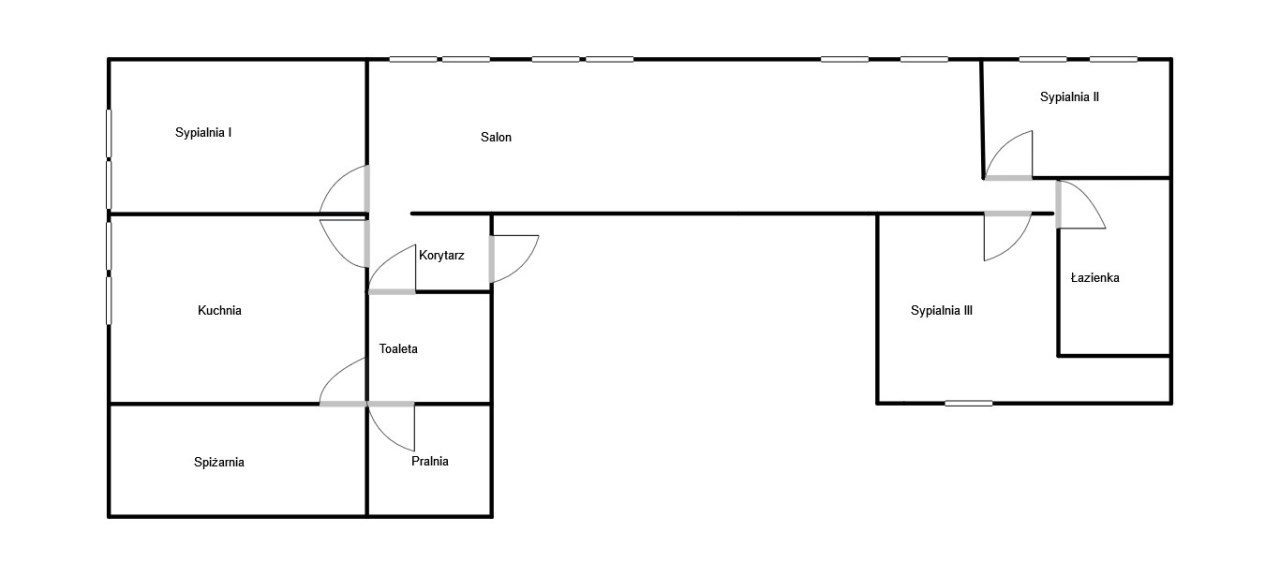
Zapraszamy do zapoznania się z ofertą wyjątkowego mieszkania o powierzchni użytkowej 62,80 m a mierzonej po podłodze około 120 m położonego na 3. piętrze w kameralnym, ogrodzonym osiedlu z bramą wjazdową na pilota. Budynek znajduje się w spokojnej, zielonej okolicy, w bezpośrednim sąsiedztwie lasu – idealne miejsce dla osób ceniących ciszę, naturę i jednocześnie bliskość miasta.
Mieszkanie składa się z:
salonu 36,27 m,
3 jasnych, ustawnych pokoi (19,5m ; 13,63 m ; 10,3 m),
kuchni 14,2 m ze spiżarką 9,7 m
łazienki z prysznicem i wanną 5,3 m
toalety 2,8 m z pralnią 5,6 m
Układ mieszkania jest trzystronny ( północny-wschód, północny-zachód, południowy-wschód), dzięki czemu wnętrza są doskonale doświetlone przez cały dzień. Pomieszczenia oferują mnóstwo przestrzeni do własnej aranżacji – idealne dla osób, które chcą stworzyć dom dopasowany do swoich potrzeb.
Dodatkowym atutem jest duża liczba miejsc na schowki i zabudowy, co pozwala utrzymać porządek i komfortową przestrzeń do życia.
Osiedle jest zamknięte i bezpieczne, z placem zabaw przed blokiem – świetna przestrzeń dla rodzin z dziećmi.
W pobliżu znajdują się:
szkoła, przedszkole,
sklepy: Biedronka, Polo Market, Netto,
Żabka na przeciwko bloku.
cicha, zielona okolica w sąsiedztwie lasu,
duże i ustawne pokoje,
funkcjonalny układ pomieszczeń,
2 łazienki i spiżarka,
teren zamknięty z bramą na pilota,
doskonała lokalizacja blisko usług i edukacji.
To mieszkanie to idealna propozycja dla rodzin, które marzą o przestronnym wnętrzu w spokojnym, zielonym otoczeniu, a jednocześnie cenią wygodę miejskiej infrastruktury.
Nie zwlekaj! Jeśli chcesz umówić się na spotkanie lub masz pytania, zadzwoń lub napisz. Chętnie pomogę Ci zrealizować marzenie o własnej przestrzeni!
Martyna Dyka 789 604 192.



